Your privacy is important to us. This website uses cookies to enhance user experience and to analyze performance and traffic on our website. By using this website, you acknowledge the real-time collection, storage, use, and disclosure of information on your device or provided by you (such as mouse movements and clicks). We may disclose such information about your use of our website with our social media, advertising and analytics partners. Visit our Privacy Policy and California Privacy Disclosure for more information on such sharing.

Log In

Our Brands

Helpful Tools

Search

Wheelbase
220"
GVWR
14,500 lb.
GCWR
22,000 lb.
GAWR Front
5,000 lb.
GAWR Rear
9,600 lb.
Fuel Capacity
55 gal.
LP Tank Capacity
40 lb.
Exterior Length
32' 3"
Exterior Height
11' 4"
Exterior Width
101"
Interior Height
84"
Fresh Water
35 gal.
Gray Water
32 gal.
Black Water
32 gal.
Awning Size
16'

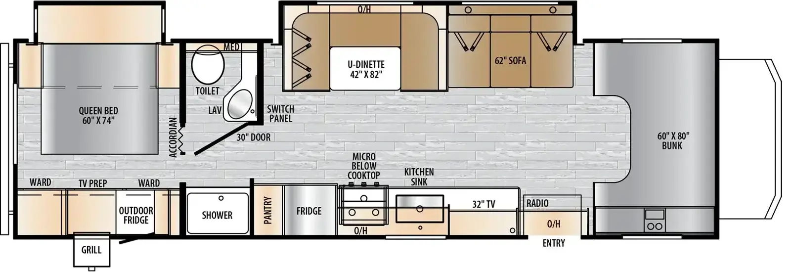
2951OK Floorplan Ford E450 Chassis Features & Options

    • Ford E-450 Chassis
    • 7,500 lb. towing capacity
    • 50 Amp Service (N/A 2001NS, 2201S)
    • College Ave Partial Paint Graphics
    • 2" Azdel Composite Exterior Sidewalls
    • 15,000 BTU Primary A/C w/Heat Pump
    • 30,000 BTU Furnace
    • 4500/6000 W Gas Generator
    • Exterior LP Quick Connect
    • TPO Roof Membrane w/ Limited Lifetime Warranty
    • Arctic Package: 12-V Tank Heaters
    • Soft Close Hardwood Cabinet Doors and Drawers
    • One-Piece Painted Fiberglass Front Cap
    • Power Awning w/LED Strip
    • Rear & Side View Cameras
    • 12-V Smart TV and USB Ports
    • High Altitude Tankless Water Heater
    • Slide Toppers
    • Inverter Prep/GFI Plug Loop
    • Exterior Spray Port
    • Slim Rack Slides
    • Black Tank Flush
    • Starlink Prep
    • Solar Prep
    • 12-V 10.7 cu/ft Dual Swing Refrigerator
    • Frameless Dual Paned Windows w/ Integrated Day/Night Shades
    • Solid Surface Countertops
    • 13,500 BTU Secondary A/C on 50 Amp Service Floorplans
    • 200-Watt Monocrystalline Solar Panels w/ 30 Amp Charge Controller
    • Powered Theater Seating (On Select Floor Plans)
    • 4-Point Hydraulic Leveling
    • Driver/Passenger Swivel Seat (On Select Floor Plans)
    • Full Paint Options: Desert Sage, Cobalt Storm, Midnight Mist